
設計師 : 林良穗 設計總監&采金房設計團隊
房屋類型 : 公寓
房屋型態 : 舊屋
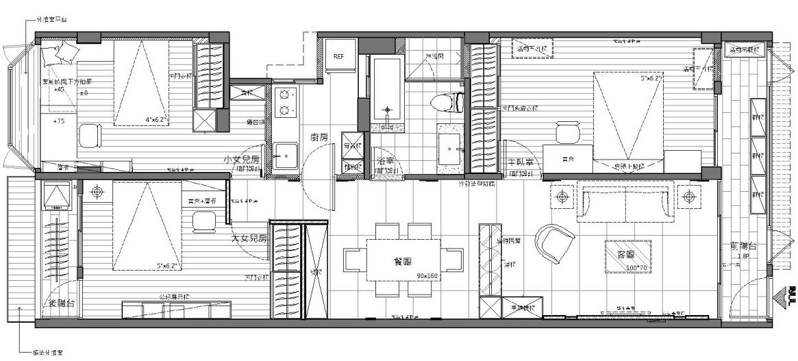
房屋格局 : 3房2廳2衛
坪數配置 : 26坪
設計時間 : 2015年5月
主要建材 : 馬塞克磚、文化石、超耐磨木地、藝術雕刻板、實木皮、系統櫥櫃、ICI塗料

記得客戶是位很有眼光的好爸爸,此中古屋屋齡老舊加上前後有窗客戶基於地點價格考量買下此屋!要如何解決現況也下了不少功夫!加上尊重女兒的喜好挑選設計公司,經幾番比較選擇采金房設計!
成員不同、個性不同、風格更不一樣,設計師能將客戶想法需求,融合本身專業建議精準整合思考,討論又討論,不僅從色彩、風格一步一步引導客戶需求達到共識!從設計、材料、尺寸、施工圖及過程都能掌握!是采金房團隊對客戶的承諾,也是讓客戶滿意的關鍵!
拆除老舊的鋁窗換上大面的反射玻璃景觀窗,增加室內採光。地壁磚的選擇以較為沉穩的色系為主,另外設計師利用一字型前陽台的特性,規畫了一長吊櫃鞋櫃,充足的收納量滿足屋主一家四口的需求。

▲Before ▲After
客廳區間距不夠,選擇牆面設計,主牆低調穩重是客戶最喜歡的氛圍。

客餐廳強調採光和通風採用可旋轉式的屏風結構的考量,能滿足隱密又不施為其功能趣味十足!


餐廳往外看客廳利用自然光和人光光源解決了長條廊道光線昏暗的缺點。



拆除客餐廳的隔間,改以天花板造型與鏤空的屏風代替。整排的電視機櫃在這個空間反而不實用,設計師將客廳主牆以木作及系統櫃作結合,並將機櫃配置在屏風旁。除了增加整體公共區域的開闊感,在動線上也較為流暢。

▲Before

▲After
原本小而侷猝的兩間主客浴,在與屋主溝通了解其需求後索性打通規劃成一間設備完善的飯店級衛浴空間。
▲Before ▲After
大膽的牆面主色調,配上新的混凝土色系統櫃,一看就知道這是很有個性的小女生房。

▲Before

▲After
舒適的一體化窗邊書桌與臥榻,搭配雅緻的床頭設計。夏天的午後在臥室休憩或讀本小說應該會一整天不想出門吧。

▲Before

▲After

設計理念 | 回歸自然、簡單的生活方式,在設計師的角色就要能用環保的概念加上好的設計,減少過度裝修、不必要的裝飾,讓空間是有溫度的,能呼吸的。提供業主一個美好的生活品質而達到健康舒適的目的,是采金房設計的堅持理念。
接案類型 | 住宅設計、商業空間、辦公室設計
擅長風格 | 現代風、簡約風、自然風、混搭風、療癒風