
在台灣因建築法規及成本關係,格局其實大同小異,因此建築物的特徵決定格局屬於「易改」或是「不易改」!觀察大門、陽台、客廳的位置,就可以找到空間變化的關鍵點,搭配公轉自轉的平配邏輯,可以為家設計出許多可能性。

以常見的30年以上中古電梯大樓的梯形格局,通常會建議八成預算放在基礎工程,例如管線重拉或處理壁癌、漏水、白蟻等,還需要協調鄰居家的瓦斯管線遷移問題,實際運用空間設計及機能需求的預算就有限。
一開始會提出二種空間配置讓屋主挑選:
A方案是在不更動格局的情況下,針對屋主想像的傳統空間配置。
B方案則是大膽地將客廳轉向90度的創意配置。
最後屋主將餐廳、廚房及長子房、次子臥室的格局使用A方案,再搭配B方案的玄關、客廳及主臥的設計,形成C方案。

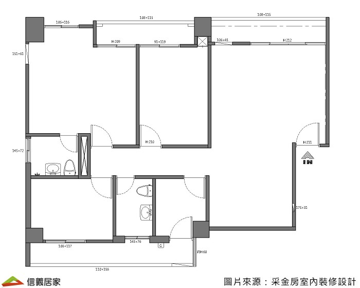
▲原始平面圖

▲A方案:傳統玄關延伸電視牆面的規劃。

▲B方案:大膽地將客廳轉向90度的創意配置。

▲C方案:將A及B方案融合的最後平面配置。
◎想知道更多平面圖規畫:《公轉。自轉格局改造術:繞行一圈,改出三種寬敞的家》https://www.books.com.tw/products/0010828838

設計理念 | 回歸自然、簡單的生活方式,在設計師的角色就要能用環保的概念加上好的設計,減少過度裝修、不必要的裝飾,讓空間是有溫度的,能呼吸的。提供業主一個美好的生活品質而達到健康舒適的目的,是采金房設計的堅持理念。
接案類型 | 住宅設計、商業空間、辦公室設計
擅長風格 | 現代風、簡約風、自然風、混搭風、療癒風